Lösungen für den Innen- & Außenbereich.
__________________
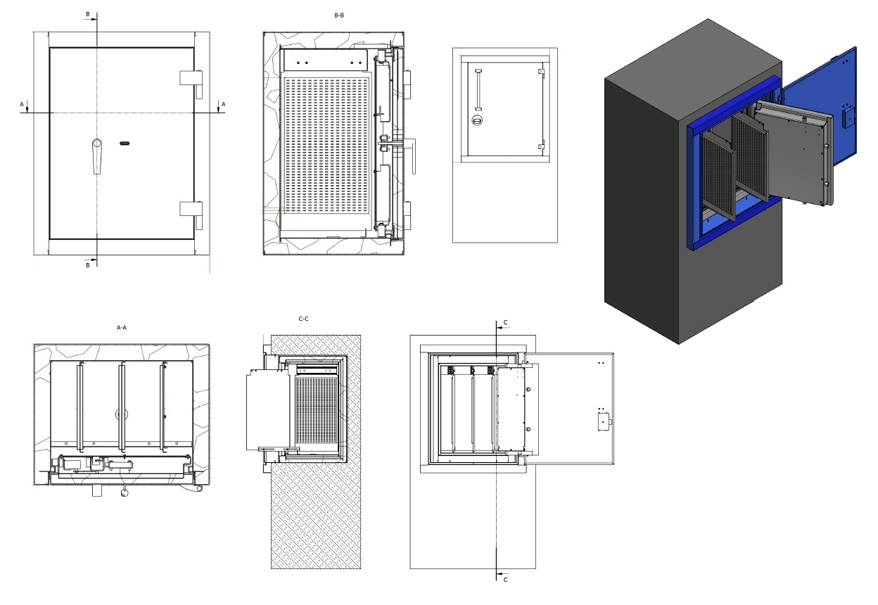
Für raue Umgebungen bieten sich unsere hochwertigen Schlüsseltresore mit Betonummantelung zur Aufstellung im Freigelände an. Die Schlüsseltresor Lösungen ermöglichen somit eine sichere Aufbewahrung von Fahrzeugschlüsseln auch im Außenbereich. Der Tresor der individuell in Höhe, Breite und Tiefe gefertigt werden kann, wird dazu rundherum mit einer Ummantelung aus Spezialbeton versehen und ggf. mit der Bodenplatte verankert. Einen sauberen Abschluß bietet die Edelstahl Fronttür. Auch die Sicherheitsstufe kann als Standard Version wie aber auch als versicherungskonforme Widerstandsklasse frei ausgewählt werden. Darüber hinaus kann der Kunde wählen, ob der Tresor über ein Doppelbart Sicherheitsschloss verfügen soll oder über eine Code Tastatur. Beschriftungen runden das Portfolio ab.
Eine wirtschaftliche und kundenfreundliche Lösung.
__________
Beispiel: Außenmaße: ca. 1760x946x675mm, Gesamtgewicht ca. 2600kg
Individuelle Ausstattung an Schlüsselhaken, mit oder ohne Ausziehschienen
Anlehnung an Sicherheitsstufe VdS Euro Norm I
Mit Doppelbart Sicherheitsschloß oder elektr. Code Schloß wählbar


// Beispiel Aufbau. Kundenspezifische Lösungen sind möglich!
Laden Sie sich unseren aktuellen Tresore Katalog als PDF herunter.
__________